Топка ТШПМ-2,0 в Тюмени

Топка ТШПМ с механическими системами топливоподачи и шлакоудаления используется в стационарных и модульных котельных для сжигания твердых видов топлива: дров, бурого и каменного угля, отходов ДВО. Оснащена шурующей планкой для распределения топлива по решетке и удаления остатков горения. Работает в паре с водогрейными котлами КВм, которые устанавливаются на топку в вертикальной компоновке.

Цена:
315 000 руб.
Количество:
Отправляя свои личные данные через формы на сайте, Вы даёте своё согласие на обработку персональных данных согласно Федеральному закону №152-ФЗ «О персональных данных» от 27.07.2006 г. в редакции от 01.07.2017.

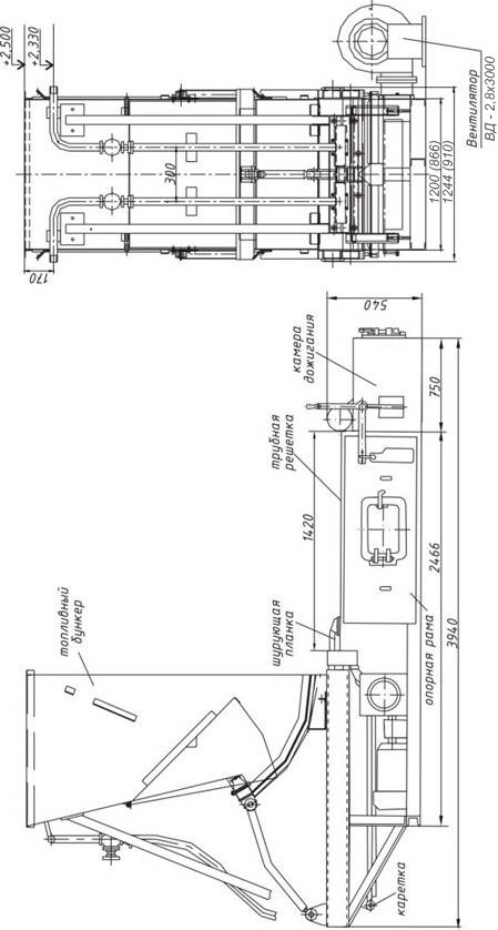
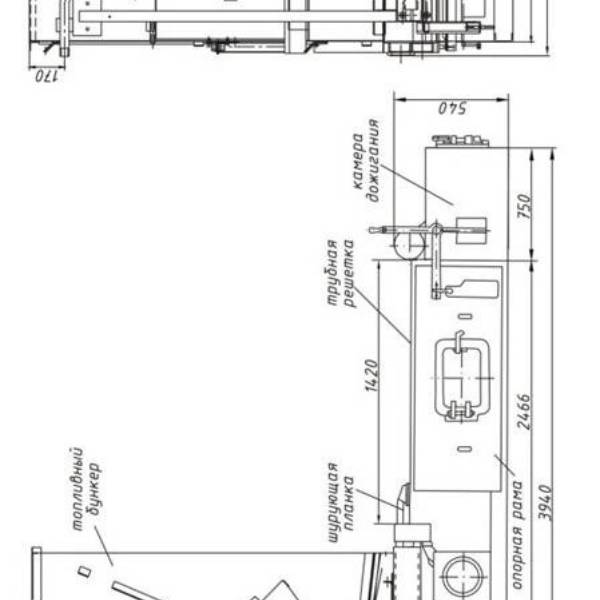
Устройство и принцип работы топки ТШПМ-2.0

Топка ТШПМ-2.0 состоит из бункера для хранения топлива с шурующей планкой, неподвижной колосниковой решетки, установленной на раме и, собственно, корпуса топки из жаропрочной стали. При помощи шурующей планки топливо из бункера поступает на колосниковую решетку. Планка распределяет куски топлива по поверхности решетки и начинается процесс горения. Для более интенсивного горения и полноценного расхода топлива в системе предусмотрены вентиляторы, которые обеспечивают дополнительный приток воздуха в топку, снизу, через отверстия решетки. В рабочем состоянии топка поддерживает температуру решетки и шурующей планки, охлаждая их при помощи системы трубопровода.

Отличительная особенность топки ТШПМ-2.0 — шурующая планка. Ее основная задача — распределять топливо по решетке образуя равномерный слой для полноценного сжигания. Также, при помощи планки происходит сброс прогоревшего топлива в виде шлака и золы в камеру отходов, расположенную под колосниковой решеткой.

Рабочие процессы топки ТШМП-2.0 могут регулироваться при помощи котельной автоматики. Для этого в котельной дополнительно оборудуется щит с выводом контроля необходимых устройств. Также, автоматика может защитить от экстренных сбоев в котельной системе и заранее блокировать механизмы устройства.

Условное обозначение

Топка ТШПМ, где:

  • Т — топка;
  • Ш — с шурующей;
  • П — планкой;
  • М — механическая.
  • 2.0 — мощность сопутствующего котла.

Монтаж топки ТШПМ-2.0

Топка ТШПМ-2.0 устанавливается на предварительно выровненную поверхность без необходимости в строительстве специального фундамента. Крепится к поверхности при помощи анкерных болтов. Бункер топлива находится сбоку, сверху топки устанавливается водогрейный котел КВм.

Монтаж котельного оборудования производится с соблюдением СНиП 11-35-76 «Котельные установки» и «Правил устройства и безопасной эксплуатации паровых и водогрейных котлов».

Характеристики
Серия: ТШПМ
Вид топлива: Бурый угольКаменный угольАнтрацит
Диапазон изменения нагрузки: 40-100 %
Коэффициент избытка воздуха за топкой, не более: 1,4
Влажность топлива, не более: 12/38 %
Зольность топлива, не более: 25/38 %
Содержание мелочи (0-6 мм), не более: 50 %
Максимальный размер куска: 100 мм
Ширина колосниковой решетки: 1180 мм
Активная площадь колосниковой решетки: 1,75 м²
Габаритные размеры: 4500х1180х2530 мм
Масса: 1600 кг
Вид топки: Механическая
Схемы

Города поставок

Москва
Пн-Пт 09:00 - 18:00
Сб 09:00 - 17:00
Карачаево-Черкесская Республика
Пн-Пт 09:00 - 18:00
Сб 09:00 - 17:00
Екатеринбург
Пн-Пт 09:00 - 18:00
Сб 09:00 - 17:00

Совершите покупку за 4 шага

Шаг 1
Выберите товары из каталога
Шаг 2
Поместите нужные вам товары в корзины
Шаг 3
Укажите свои контактные данные в форме обратной связи
Шаг 5
Ожидайте звонка от менеджера для оформления покупки

Похожие товары

Топки ТШПМ
Топки ТШПМ
Цена от 0 руб.
Топки ТЧЗМ
Топки ТЧЗМ
Цена от 0 руб.
Топки ТЛПХ
Топки ТЛПХ
Цена от 0 руб.
Вы смотрели эти товары
Топки котлов
Топка ТШПМ с механическими системами топливоподачи и шлакоудаления используется в стационарных и модульных котельных для сжигания твердых видов топлива: дров, бурого и каменного угля, отходов ДВО. Оснащена шурующей планкой для распределения топлива по решетке и удаления остатков горения. Работает в паре с водогрейными котлами КВм, которые устанавливаются на топку в вертикальной компоновке.
Топки котлов
Топка ТШПМ с механическими системами топливоподачи и шлакоудаления используется в стационарных и модульных котельных для сжигания твердых видов топлива: дров, бурого и каменного угля, отходов ДВО. Оснащена шурующей планкой для распределения топлива по решетке и удаления остатков горения. Работает в паре с водогрейными котлами КВм, которые устанавливаются на топку в вертикальной компоновке.
Циклоны
Циклон ЦН-24-600-4УЦ — это устройство, которое предназначено для очистки газового потока от частиц пыли, размер которых более 20 мкм. Данное очистное устройство не предназначено для высокой степени очистки газов от загрязняющих веществ, применяется как первая ступень очистки газа от пыли для дальнейшей дезактивации или как очистное сооружения на предприятиях, где есть обширная санитарно-защитная зона и возможности выбрасывать загрязнённые газовые потоки в атмосферу. Чаще всего применяется данная модель циклона на предприятиях черной и цветной металлургии, при изготовлении строительных материалов, в машиностроительной промышленности, при транспортировке вредных мелкозернистых вредных веществ, а также в нефтяной и химической индустрии.